Architektur Hürzeler

  • Umbau Sekundarschule
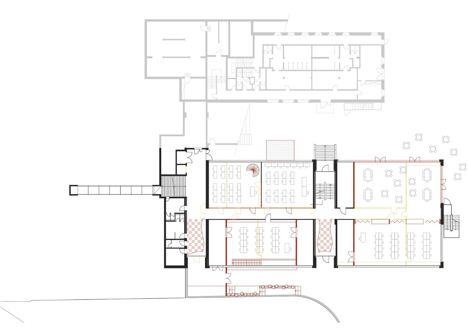
    EG

    EG
  • Umbau Sekundarschule
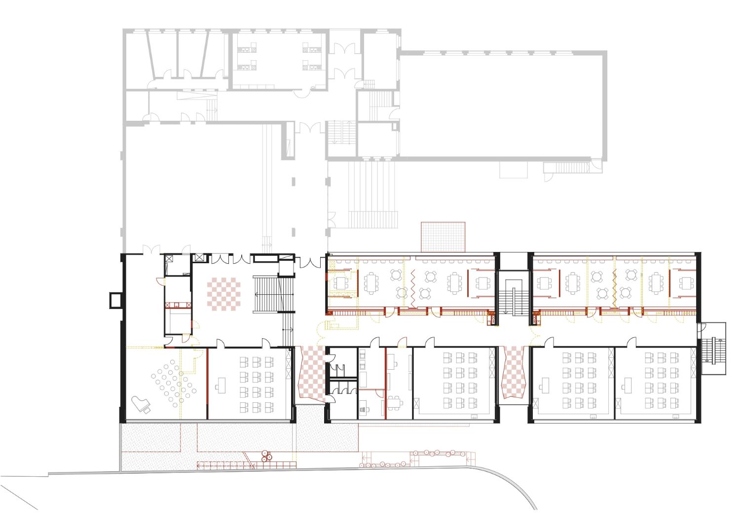
    1.UG

    1.UG
  • Umbau Sekundarschule
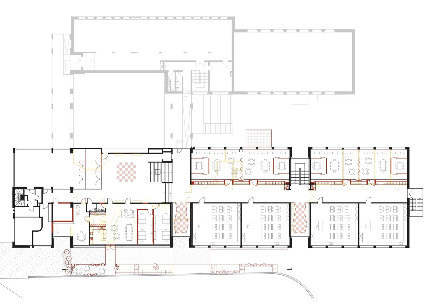
    2.UG

    2.UG
  • Umbau Sekundarschule
    Eingang

    Eingang
  • Umbau Sekundarschule
    Pausenecke

    Pausenecke
  • Umbau Sekundarschule
    Gang

    Gang
  • Umbau Sekundarschule
    Gruppenraum

    Gruppenraum
  • Umbau Sekundarschule
    Mensa

    Mensa
  • Umbau Sekundarschule
    Aussenplatz

    Aussenplatz
Architektur Hürzeler