Architektur Hürzeler

  • Schulanlage Sennhof, Winterthur

  • Schulanlage Sennhof, Winterthur

  • Schulanlage Sennhof, Winterthur

  • Schulanlage Sennhof, Winterthur

  • Schulanlage Sennhof, Winterthur

  • Schulanlage Sennhof, Winterthur

  • Schulanlage Sennhof, Winterthur

  • Schulanlage Sennhof, Winterthur

  • Schulanlage Sennhof, Winterthur

  • Schulanlage Sennhof, Winterthur
    Untergeschoss

    Untergeschoss
  • Schulanlage Sennhof, Winterthur
    Obergeschoss

    Obergeschoss
  • Schulanlage Sennhof, Winterthur
    Schnitt 1

    Schnitt 1
  • Schulanlage Sennhof, Winterthur
    Schnitt 2

    Schnitt 2
  • Schulanlage Sennhof, Winterthur
    Schnitt 3

    Schnitt 3
  • Schulanlage Sennhof, Winterthur
    Schnitt 4

    Schnitt 4
  • Schulanlage Sennhof, Winterthur
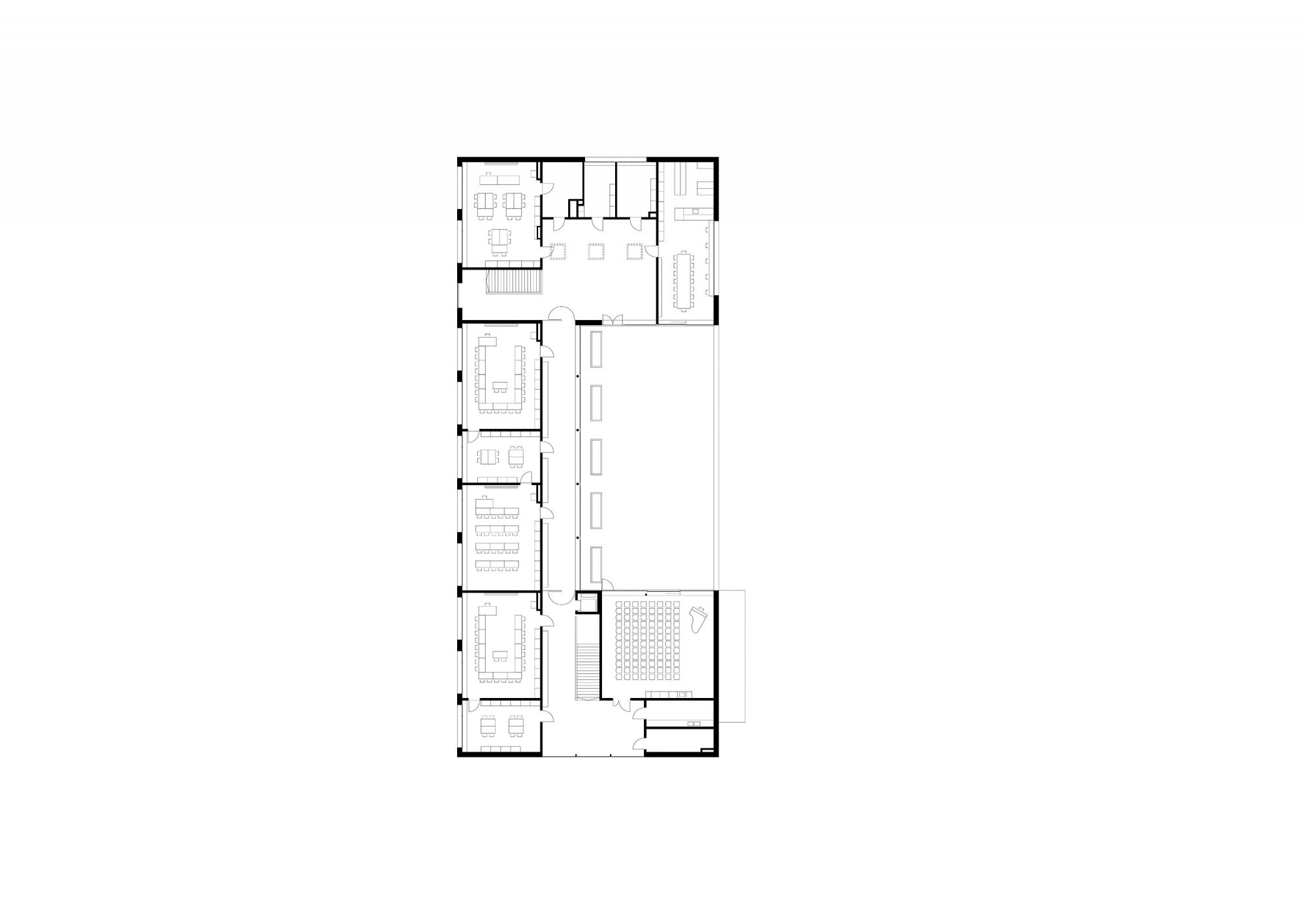
    Erdgeschoss

    Erdgeschoss
  • Schulanlage Sennhof, Winterthur
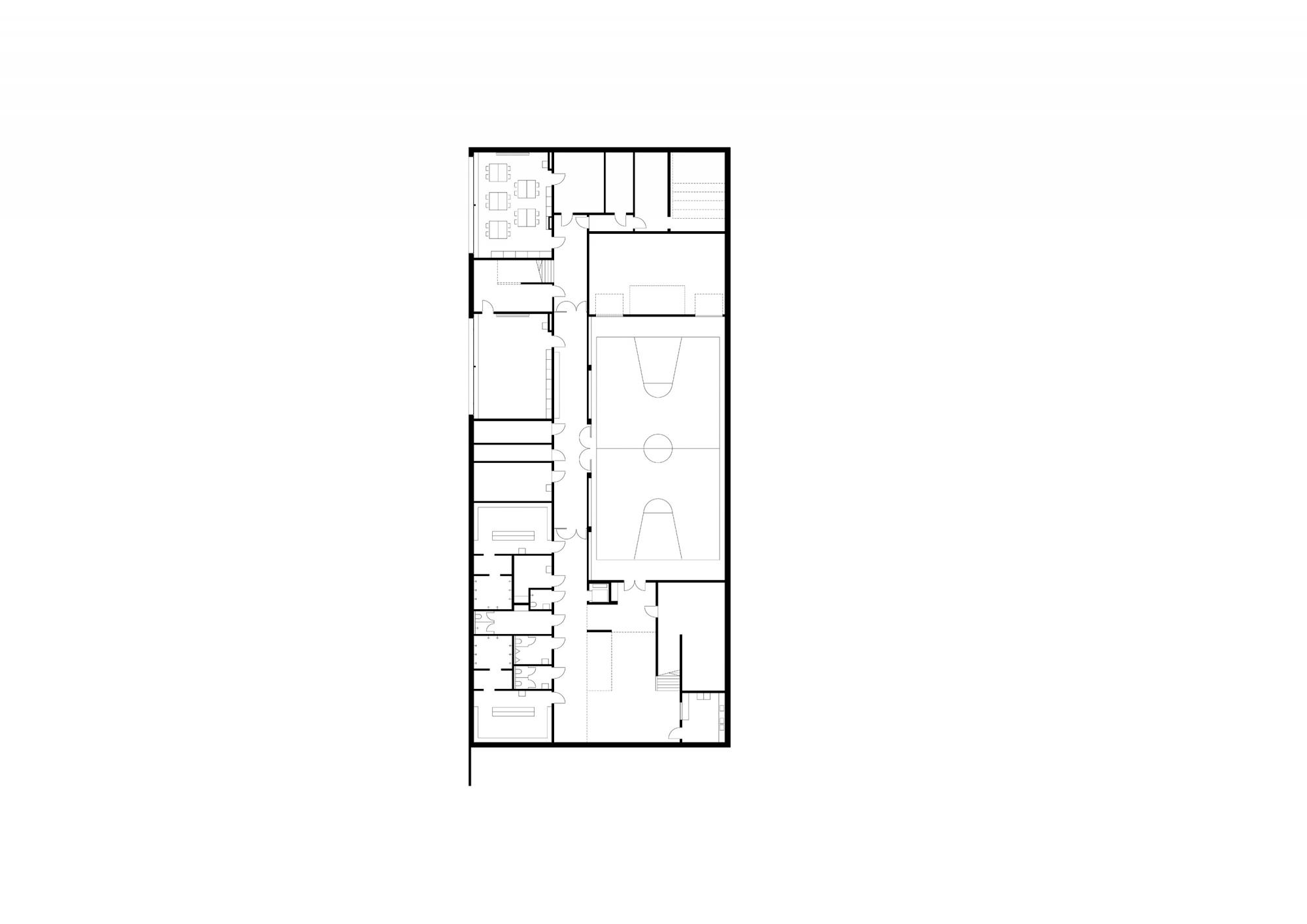
    Untergeschoss

    Untergeschoss
  • Schulanlage Sennhof, Winterthur

  • Schulanlage Sennhof, Winterthur

Die Platzierung des zweigeschossigen Neubaus parallel zum Tössdamm ermöglicht den weitläufigen Aussenraum mit Pausenplatz vor der Eingangsseite des Schulhauses. Der Haupteingang nimmt Bezug zum visàvis gelegenen alten Schulgebäude von Sennhof, das sich mit seinem aufs Dach auf gesetzten kleinen Uhrund Glockentürmchen am Heimatstil anlehnt – ein Schulhaus ganz wie aus dem Bilderbuch. Die im Erdgeschoss eingezogene Ecke des Neubaus akzentuiert die Eingangssituation und bildet gleichzeitig einen gedeckten Pausenbereich. In der Eingangshalle ist durch das raumhohe Fenster der Fluss hinter dem Schulhaus zu sehen, die beidseitige Ausrichtung erleichtert die Orientierung im Inneren.

Die prominent angeordnete Halle im Untergeschoss, mit Lichtführung und Einblicksmöglichkeiten durch das hoch liegende Fensterband an drei Seiten, ist wesentlich für die einladende Atmosphäre im Schulhaus. Sowohl vom Korridor vor den Schulzimmern als auch vom Pausenplatz kann man die Sportler in der abgesenkten Turnhalle beobachten, diese ungewohnte Perspektive – man steht über dem Höhenniveau der Basketballkörbe – ist vor allem für Kinder faszinierend. Alle sechs Klassenzimmer orientieren sich zur ruhigen Tösslandschaft. Im Obergeschoss wird das Hallendach zur begehbaren 150 Quadratmeter grossen Dachterrasse.

Projektrealisierung in Zusammenarbeit mit Urben Seyboth Architekten AG

Architektur Hürzeler