Architektur Hürzeler

  • Pionierpark, Winterthur

  • Pionierpark, Winterthur

  • Pionierpark, Winterthur

  • Pionierpark, Winterthur

  • Pionierpark, Winterthur

  • Pionierpark, Winterthur

  • Pionierpark, Winterthur

  • Pionierpark, Winterthur
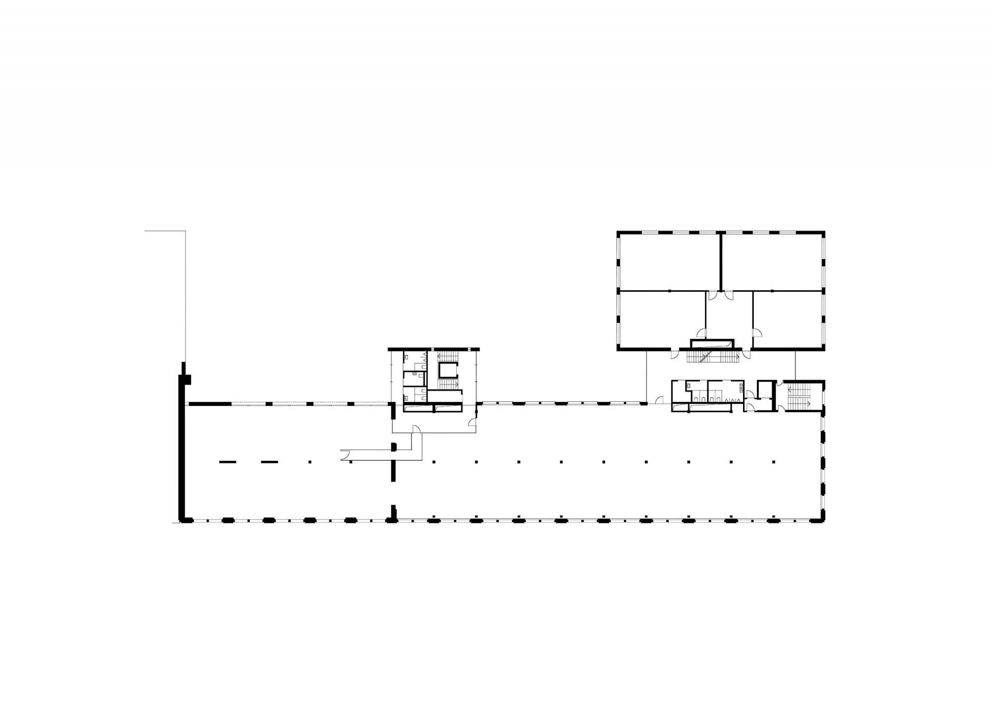
    Erdgeschoss

    Erdgeschoss
  • Pionierpark, Winterthur
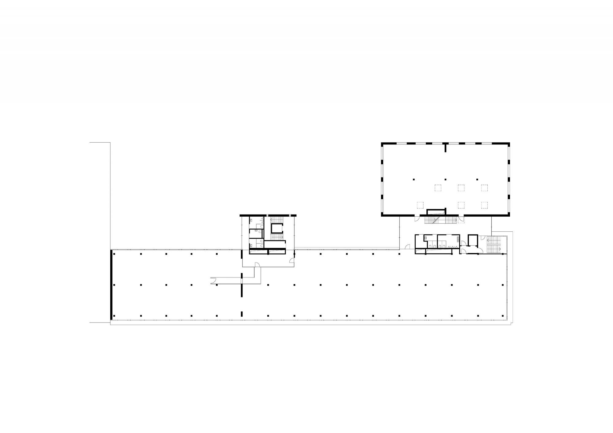
    1. Obergeschoss

    1. Obergeschoss
  • Pionierpark, Winterthur
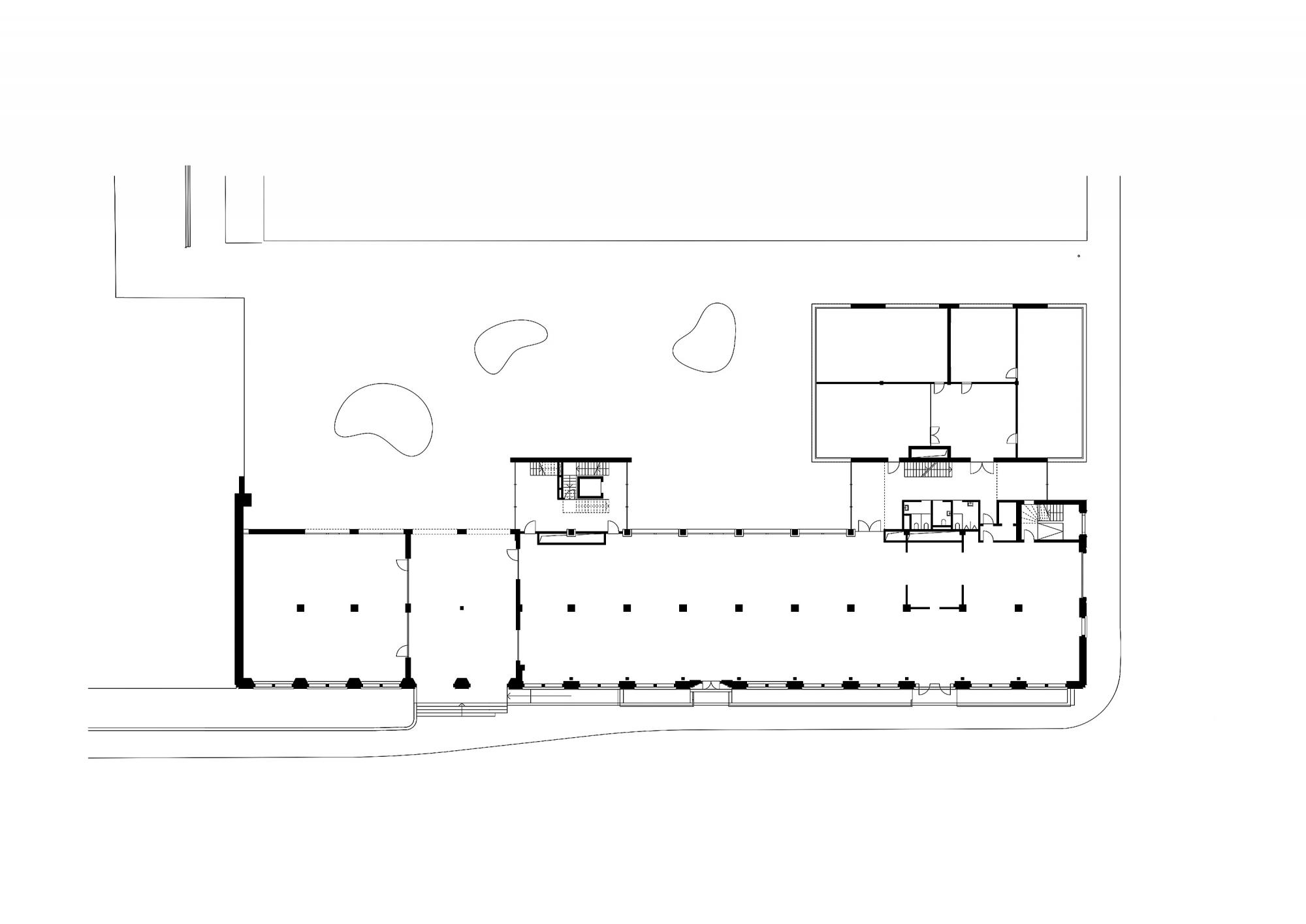
    2. Obergeschoss

    2. Obergeschoss

Das Sulzerareal hat in Winterthur eine wichtige Bedeutung inne. Gut einen Zehntel der gesamten Stadtfläche besetzt das ehemalige Industrieareal, welches heute schrittweise in einen neuen, wieder lebendigen Stadtteil umgenutzt wird. Praktisch das ganze Gebiet wird in und um die bestehenden Fabriken neu von Wohnungen, Büros, Schulen und Räumlichkeiten für Kultur und Freizeit besetzt.

Der Pionierpark, bestehend aus den Gebäuden 59 und 62 des ehemaligen Sulzerareals, gehört zu den denkmalpflegerisch geschütztes Bauten. Die eindrücklichen Fassaden entlang der Zürcherstrasse und Pionierstrasse werden saniert. Durch eine grössere Ausnützungsmöglichkeit der Volumen darf hier aufgestockt werden, und wird deshalb als Kontrast zum Altbau mit Stahl und Glas in leichter Erscheinung ausgeführt.

Gegen Süden entsteht ein neues Volumen in einfacher und klarer Form aus Sichtbeton. Das nahezu sechs Meter hohe Erdgeschoss vom Altbau übernimmt der Neubauteil, womit eine schwebende und imposante Wirkung erzeugt wird. Zwischen Alt- und Neubau werden das Treppenhaus und der Treppenturm als klare Trennung der Hauptgebäude eingesetzt, diese funktionieren wie als Dock‘s.

Bei den neu errichteten Fassaden erinnert der rohe Sichtbeton und die Stahlkonstruktion an den Charakter der alten Industriebauten. Die Fassadenflächen vom Neubau und die Wandscheibe des Treppenturms übernehmen die Grossflächigkeit der alten Gebäude des Sulzerareals. Die Nutzung von 7000 m2 Fläche im Pionierpark ist offen. Die Grundrissgestaltung lässt eine unabhängige Teilung verschiedener Nutzer innerhalb der Geschosse zu.

Fotos: Gaston Wicky, Zürich, www.architekturmedia.ch

Architektur Hürzeler