Architektur Hürzeler

  • EFH, Steinhausen
    Fassade Süd West

    Fassade Süd West
  • EFH, Steinhausen
    Fassade Süd West Ost

    Fassade Süd West Ost
  • EFH, Steinhausen
    Fassade Nord Ost West vor Umbau

    Fassade Nord Ost West vor Umbau
  • EFH, Steinhausen
    Fassade Nord West

    Fassade Nord West
  • EFH, Steinhausen
    Fassade Süd West vor Umbau

    Fassade Süd West vor Umbau
  • EFH, Steinhausen
    Untergeschoss

    Untergeschoss
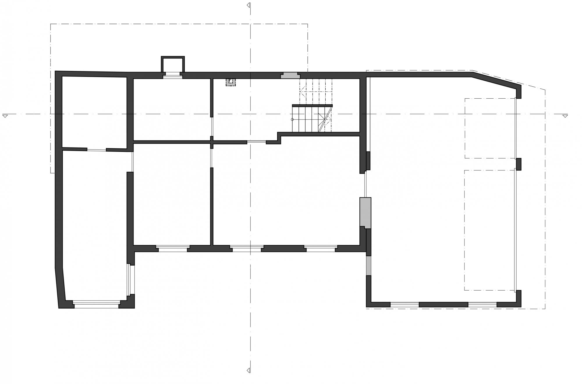
  • EFH, Steinhausen
    Erdgeschoss

    Erdgeschoss
  • EFH, Steinhausen
    Obergeschoss

    Obergeschoss
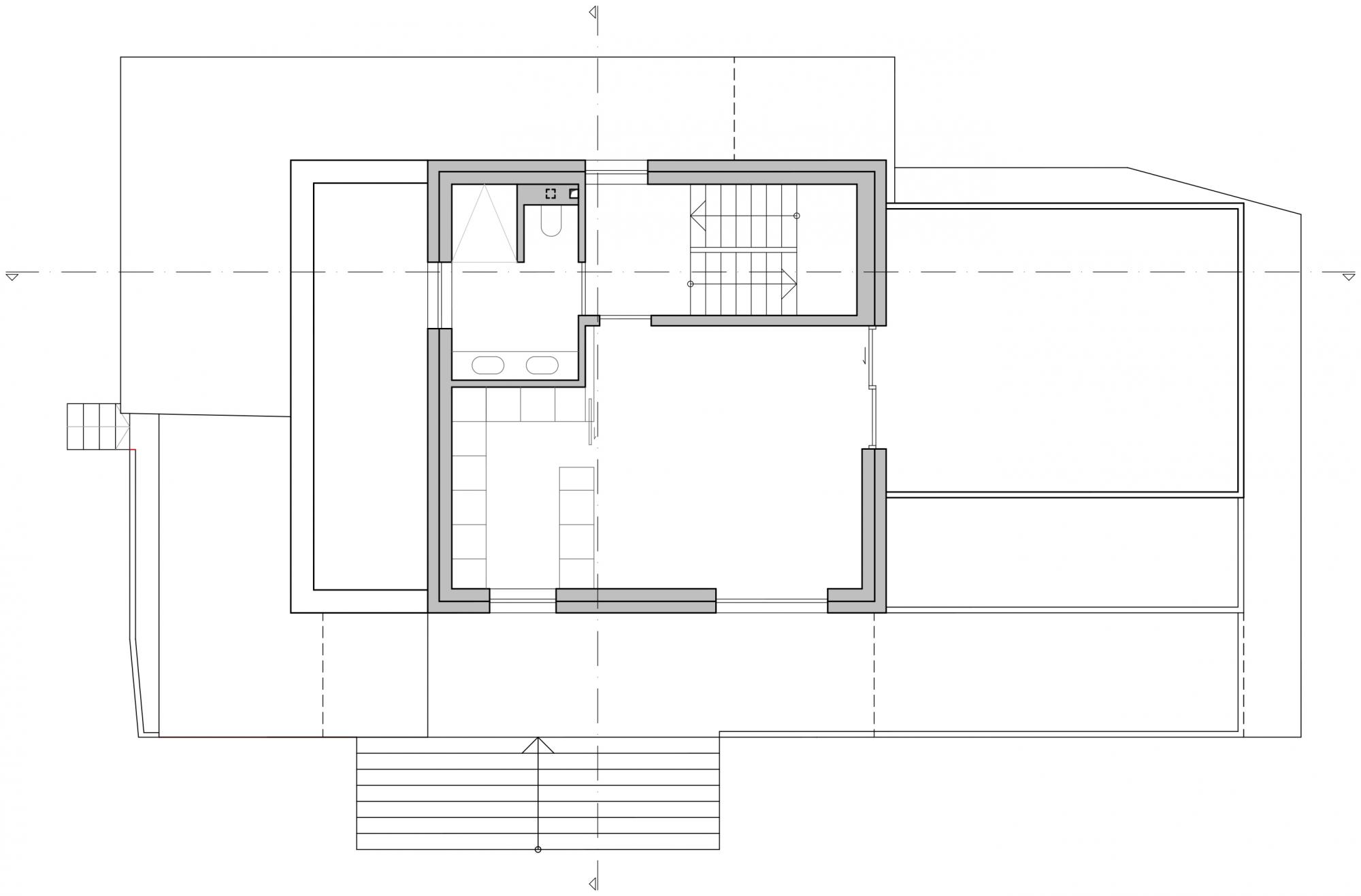
  • EFH, Steinhausen
    Attikageschoss

    Attikageschoss
  • EFH, Steinhausen
    Schnitte

    Schnitte
Architektur Hürzeler